
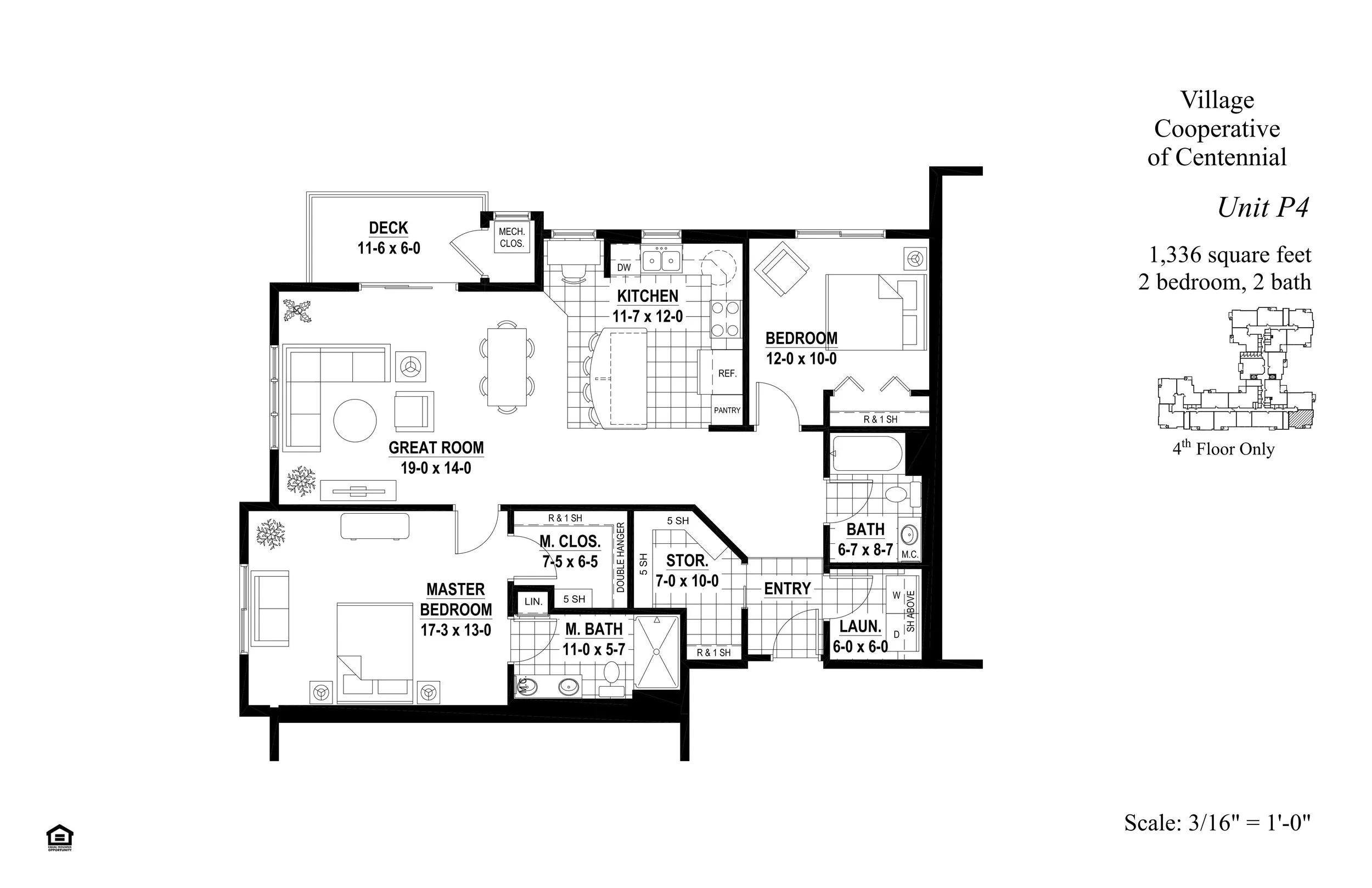
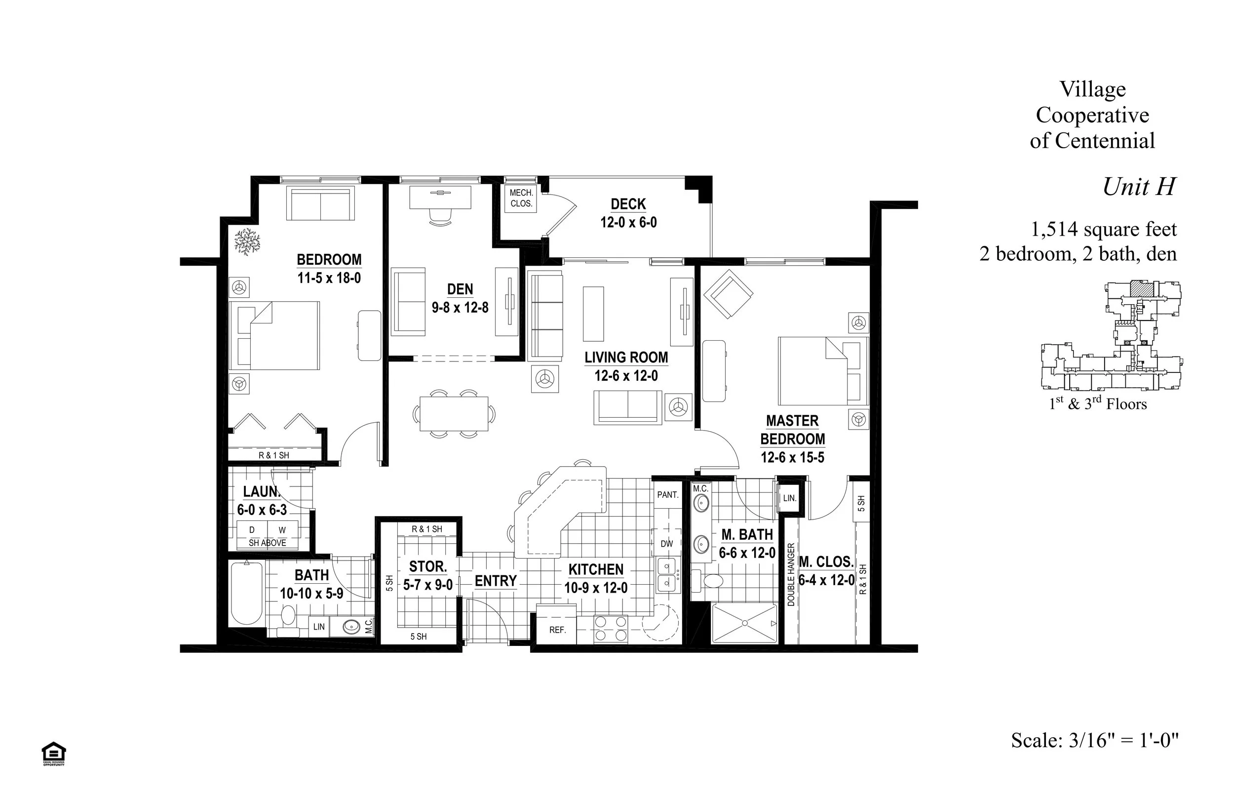
Floor Plans
Village Cooperative of Centennial has 74 spacious homes specifically designed and built for active adults 62+ who want to live in a beautiful, maintenance free and surprisingly affordable community with all the advantages of home ownership and none of the hassles.
Homes range in size from 1,240 sq. ft. to 1,769 sq. ft. within a four-story building built over secure underground heated parking. All homes include energy efficient appliances, a private washer and dryer, plus in-home storage, walk-in closets and individually controlled HVAC systems.
See detailed floor plans below.
NOTE:
VCC floor plans are for illustrative purposes only and may not reflect exact room sizes, dimensions or features.




























Ready to Take the Next Step?
Have questions or want to see everything that’s included? We’ve got you.